Elenco dei limiti di temperatura dell'app
Materialee Temperatura media ℃ Materialee Temperatura media ℃
PVC-C -20℃~95℃ PVC-U -5℃~45℃
FRPP -20℃~120℃ PPH -20℃~ 110℃
PVDF 40℃~150℃

Caratteristiche strutturali del prodotto

1. Resistenza chimica superiore: ampio intervallo di temperatura operativa da -20°C a 95°C, il contenuto di ioni pesanti nel mezzo soddisfa gli standard dell'acqua ultrapura e le proprietà igieniche soddisfano gli standard sanitari nazionali.
2. Eccellente resistenza, tenacità e resistenza alla corrosione chimica.
3. Durabilità: l'eccellente resistenza all'invecchiamento e ai raggi UV prolunga in modo significativo la durata di altri sistemi di tubazioni.
4. Bassa conduttività termica: circa 1/200 di quella dell'acciaio; ritardante di fiamma autoestinguente.
5. leggero: leggero, equivalente a 1/5 di tubo d'acciaio e 1/6 di tubo di rame.
6. Bassa resistenza, portata elevata: superficie del tubo liscia e pulita, riduce al minimo l'attrito e l'adesione durante il trasporto dei fluidi.
7. Installazione semplice, basso costo: sono disponibili connessioni adesive e filettate, la colla è la più conveniente.

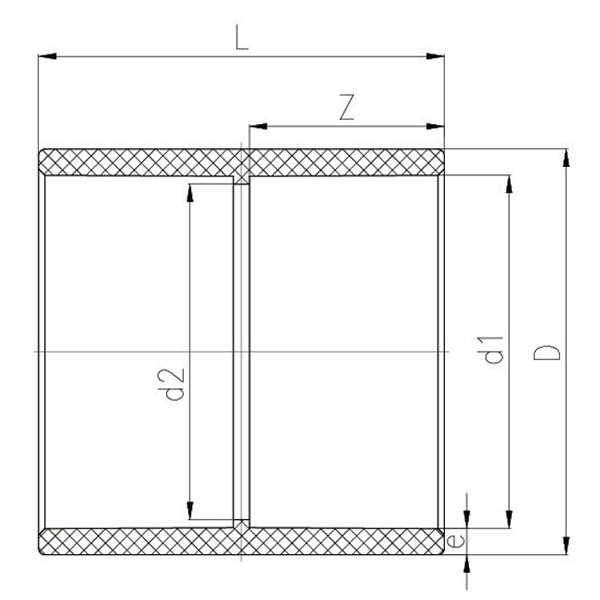
Elenco dimensioni

DN D d1 d2 l Z e
15 27 20 18 35 16 3.5
20 32 25 23 40 18.5 3.5
25 40 32 30 47 22 4
32 50 40 38 55 26 5
40 61 50 47 65 31 5.5
50 75 63 60 80 37.5 t6
65 88 75 72 92 44 6.5
80 104 90 86 107 51 7
100 127 110 105 127 61 8.5
125 161 140 134 158 76 10.5
150 184 160 154 180 86 12
200 249 225 219 247 118.5 12
250 309 280 272 303 146 14.5
300 346 315 306 338 163.5 15.5
350 392 355 349 380 184 18.5
400 440 400 393 430 206 20
450 494 450 430 477 231 22
500 548 500 480 527 256 24
600 692 630 600 657 321 31
700 758 710 690 737 361 22.5
800 843 800 780 830 406 20

Feedback sul messaggio
Chi siamo
Kaixin Pipeline Technologies Co., Ltd.
Fondata nel 1999, Kaixin Pipeline Technologies Co., Ltd. è un'impresa high-tech che integra ricerca e sviluppo, produzione, vendite e assistenza. L'azienda detiene numerose certificazioni prestigiose, tra cui National High-Tech Enterprise, "Little Giant" Specialized and Sophisticated SME, National Single Product Champion (Coltivazione), Provincial Technology-based SME, Ningbo Specialized and Sophisticated SME, Ningbo Single Product Champion (Coltivazione), Ningbo Polymer Pipe & Valve Technology R&D Center, District-Level Green Factory, Ningbo Four-Star Management Innovation Enterprise e Enterprise Data Management Capability Maturity Level 2.
Siamo specializzati nello sviluppo, produzione e fornitura di prodotti non metallici resistenti alla corrosione per applicazioni chimiche, tra cui valvole in plastica, tubi, raccordi e pompe resistenti alla corrosione. Il nostro portafoglio di prodotti comprende materiali come PVC-C, PVC-U, PVDF, PPH e FRPP, con una gamma completa di tipi e specifiche. In particolare, le nostre valvole a farfalla possono raggiungere il diametro DN1000, mentre tubi e raccordi si estendono fino al DN800, colmando le lacune del mercato e mantenendo il nostro vantaggio competitivo nel settore.
Guidata dal principio “guidata dalla tecnologia, al passo con i tempi”, Kaixin stanzia quasi 10 milioni di RMB all’anno in ricerca e sviluppo. Garantiamo una qualità del prodotto superiore attraverso una produzione automatizzata standardizzata e un approvvigionamento rigoroso di materie prime importate. In linea con la nostra strategia di sviluppo internazionale, monitoriamo continuamente le tendenze del mercato globale e sfruttiamo i canali digitali per offrire prodotti “Made in China” di alta qualità ai clienti di tutto il mondo.
Ningbo • Base di ricerca e sviluppo e produzione di Fenghua
Con un investimento totale di 200 milioni di RMB, Kaixin Ultra-Pure Pipe Technology (Ningbo) Co., Ltd. ha creato un nuovo laboratorio di materiali in collaborazione con università e istituti di ricerca, costruito una moderna base di produzione e installato 8 linee di produzione completamente automatizzate per plastiche modificate e 8 per materiali polimerici. La struttura è dedicata alla ricerca e sviluppo, alla produzione e all'applicazione di nuove plastiche modificate e materiali polimerici. Kaixin è inoltre impegnata ad attrarre i migliori talenti in tutte le discipline, guidando continuamente l'innovazione dei prodotti e lo sviluppo del marchio, con l'obiettivo di diventare un leader riconosciuto a livello mondiale nella ricerca e sviluppo e nella produzione di valvole, tubi e raccordi polimerici.
Certificato d'onore
  • honor
  • honor
  • honor
  • honor
  • honor
  • honor
  • honor
  • honor
  • honor
Novità